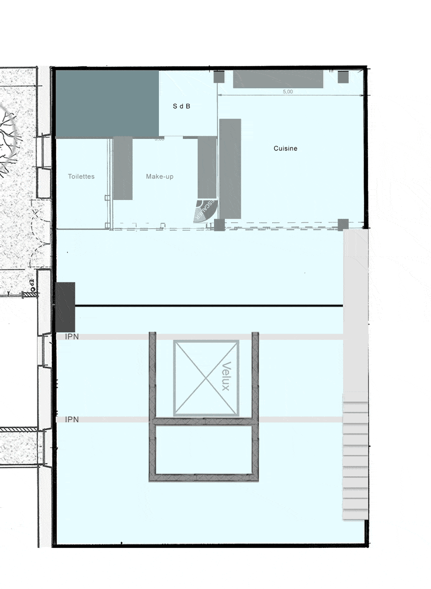
Le plan StudioParisImages 2024-03
Toutes les cotes du Studio Paris Images
Dimensions en détail et implantation électrique
Plus de détails sur l'implantation du grill d'accrochage fixe et l'alimentation électrique